留言板

尊敬的读者、作者、审稿人, 关于本刊的投稿、审稿、编辑和出版的任何问题, 您可以本页添加留言。我们将尽快给您答复。谢谢您的支持!

姓名
邮箱
手机号码
标题
留言内容
验证码

美国·波士顿大学的地标性建筑: 悬臂式体量,垂直校园,独特的线性美感

发布日期: 2024-02-29 阅读次数:
  • 分享到:

用微信扫码二维码

分享至好友和朋友圈

图片

波士顿大学计算与数据科学中心是波士顿大学的地标性建筑。它改变了学校的天际线,实现了值得称赞的可持续发展目标,并将以人为本的设计放在首位,最大限度地加强了合作与互联。该项目汇集了数学、统计和计算机科学系,在3000名学生、教职员工中建立了社区。实现垂直校园。

图片

图片

该中心巍然耸立在查尔斯河畔,楼高19层,占地面积 345,000 平方英尺,是波士顿最大的、可持续的、不使用化石燃料的建筑。其悬臂式体量具有红褐色对角百叶窗(最大限度地减少太阳辐射,同时最大限度地提高遮阳效果)和闪闪发光的镜面锯齿外墙,这些外墙位于三层玻璃幕墙之上。这些设计元素不仅为建筑增添了独特的线性美感,还有助于提高舒适度和可持续性,使建筑冬暖夏凉。
图片
图片
裙楼突出悬停在联邦大道上,使街景更加完整,并最大限度地激发了大道底层的活力。它高度透明、多孔,可作为到达、学习和聚会的城市门廊。该中心的概念是作为一个上升的学术社区,低层用于数学和统计学,中层用于计算机科学,顶层用于跨学科工作和公共空间。
中央中庭以协作精神将教师和学生团结在一起,一条相互连接的楼梯从该区域穿过,向上延伸至138层,将各个学科连接起来,促进思想的相互交流,激发偶然的相遇。
图片
该设计为波士顿及其他地区未来的学术建筑树立了一个雄心勃勃的可持续发展新先例。波士顿大学气候行动计划的目标是到 2040 年将该校的碳排放量降至零,根据该计划,该中心的目标是获得 LEED 白金级认证,并通过地热闭环系统实现 100% 的无化石燃料运行,该系统通过地源热泵系统为大楼供暖和制冷。
图片
建筑利用可再生和替代能源,包括地下水补给系统和最先进的外部遮阳系统。开放式的内部空间充分利用了中心位于波士顿市中心的独特地理位置,从建筑的三面都可以欣赏到广阔的河景。
教室和协作空间采用落地玻璃窗,光线充足,提醒沉浸在数字世界中的学生们要时刻从自然世界中汲取灵感,牢记技术与人文之间的联系。整个核心区的白板墙激发了学生的合作意识,同时也展示了他们的工作过程。

图片
这座先进的建筑包括12间教室、两个计算机实验室、底层的咖啡厅、多个合作空间以及一个带盖自行车棚的广场。叠加式校园的顶端是一个活动空间和三层楼高的露天凉亭。绿色屋顶和露台遍布整个中心,将学生、教职员工与自然环境联系在一起,并可欣赏到城市美景。这些开放空间加强了中心各部门之间的联系与合作。
图片
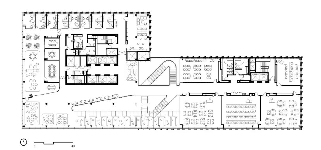
项目图纸
图片
平面图
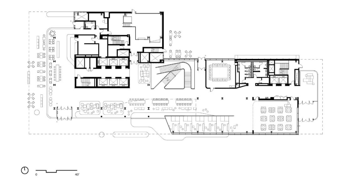
图片
平面图
图片
平面图
图片
平面图
图片
平面图

图片
剖面图
图片
分析图
图片

分析图

项目信息
建筑师:KPMB Architects
地点:美国
面积:345000 平方英尺
年份:2022
摄影:Tom Arban


  • 分享到:

用微信扫码二维码

分享至好友和朋友圈

发布日期: 2024-02-29 阅读次数: